Holy Trinity - The Inside Story
The interior of Holy Trinity has changed quite considerably since it was built. The various restorations and additions are outlined below.

The view looking towards the chancel
c.1865. Notice the pulpit on right-hand
side and an open reading desk on the
left. There are benches in the chancel
for children and all the pews have
doors to them.
According to J.T. Godfrey the east end of the chancel had originally been partitioned off from the rest of the church in order to create a vestry and this state of affairs prevailed until the present vestry was erected in 1862. In anticipation of the restoration of the chancel a reredos in Ancaster stone was commissioned and installed on its eastern wall four years earlier. Tastes change and this altar screen eventually fell from favour, to be replaced in 1911 by the present reredos, the gift of W.G. Player. Executed in mosaic work, with green and gold glazed tiles, this bears the figure of Christ with four angels at his feet. The altar stands immediately in front of the reredos. This is a recent installation. Made of Japanese oak by students at Basford College it was given to the church in 1972 as a memorial to Donald F. Wood, for many years churchwarden at Holy Trinity.

Taken from the programme cover printed to
celebrate the installation of the first organ at Holy
Trinity.
Initially the organ had been housed up in the gallery but in 1870 it was moved into the purpose-built extension situated to the north of the chancel. The choir also took the opportunity at this time to move out of the gallery and take up residence in the chancel where it has remained to this day. Holy Trinity acquired its first organ in 1847, replaced in 1906 by the present instrument manufactured by Brindley & Foster and another gift of W.G. Player. The same gentleman provided the money for the beautifully carved wooden rood screen which separates the nave from the chancel. This was erected in 1931.
The gallery is actually smaller now than when it was first constructed, as it was reduced in size back in 1894. The opportunity was also taken at this time to build a choristers' vestry beneath it. In the 1980s the gallery was partitioned off at either end in order to provide badly needed meeting rooms. These are now largely surplus to requirements following the conversion into parish rooms of the ground floor of the old vicarage.
Holy Trinity's original pulpit was a tall wooden structure, commonly known as a 'two decker', positioned on the south side of the chancel. The top deck was taken off in 1862 and this modified platform was retained until 1882 when an 'ironwork' pulpit was installed. (The Primitive Methodists whose chapel used to stand on Abbey Street took possession of the old one.) The ironwork pulpit didn't remain at Holy Trinity for very long, so it looks as though the metal structure was not generally well received. Instead a wooden pulpit was bought and the metal one sold to All Souls Church across in Radford. This wooden pulpit is the one in current use at Holy Trinity and it has remained in its present position, on the northern side of the chancel, ever since its arrival in 1894.
THE MEMORIAL WINDOWS

Bottom left light of the memorial window to
Lois Ball (W5) erected by her sons, Frederick
and Albert Ball, entitled 'All were astonished at
his understanding.' Photograph by Paul Bexon.
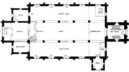
All the windows of Holy Trinity were initially glazed with plain glass. It was only gradually over a period of some sixty years that the church gained its collection of stained glass memorials. The position of these memorial windows is indicated on the plan of the church which is shown elsewhere in this article.
In February 1873 Francis Wright, the church's main benefactor, died and his family and friends subsequently paid for a memorial window (W1) to be erected in the chancel. Flowers and fruit make up its design and visitors to the church frequently comment on how attractive and unusual the window is.
The second window to be installed is a memorial to Thomas Adams who died in May 1873. Thomas Adams lived at Lenton Firs and ran one of the leading lace manufacturing businesses in Nottingham.
His premises on Stoney Street had a chapel in the basement which employees could use and the vicar of Lenton used to officiate at the early morning service. Thomas Adams was buried in the Rock Cemetery on Mansfield Road after a funeral which some 10,000 people are said to have attended. His memorial window (W6) erected by 'friends and neighbours' is on the south aisle and depicts scenes taken from four of Jesus's parables. Included in these are the return of the prodigal son and the good Samaritan. After the Adams window had been paid for, some money still remained and so a small window in the south east of the south aisle (W8) was also commissioned. Known as the 'Timothy Window', it contains a portrayal of a young boy being instructed in the scriptures by his mother.
The third memorial window was unveiled on 7th November 1901 by Earl Roberts V.C. K.G, Commander in Chief of the British Army. This window in the north aisle had been erected by public subscription in memory of seven Lenton men who had lost their lives fighting in the Boer War. The unveiling by Earl Roberts was the final event in quite a busy day. He had begun by attending a ceremony held in the Market Square at which some thousand men from battalions across the East Midlands were presented with Boer War Campaign medals. In the afternoon he visited the Children's Hospital where a bazaar was opened and a memorial plaque unveiled. After which it was the short journey across to Lenton. He finally departed Nottingham bound for Welbeck Abbey where he was to stay with the Duke and Duchess of Portland. The four lights in the Boer War window (W3) incorporate scenes from the lives of those biblical soldiers, David and Joshua. In one David is seen setting out to meet Goliath and in another David and Saul are shown returning triumphant from the Philistinian campaign. The middle two lights show Joshua carrying out sentry duty in the vicinity of the walls of Jericho and Joshua's men fighting the Amalekites while Moses, Aaron and Hur watch from a mountain top.
In October 1902 Mrs. Mary Ann Sharp died and when her will was read it was revealed that she wished a memorial window, not exceeding £150 in value, be erected at Lenton Parish Church to the memory of her parents William Rastall and Ann Brewill. W.R. Brewill had been a butcher in Nottingham after starting in business in a shop in New Lenton. He lived to the age of 93 and only died five years before his daughter Mary Ann in 1897. One of his sons was A.W. Brewill who later designed the Albert Ball Memorial Homes. Evidently the manufacture of a memorial window of four lights for less than £150 was no problem and the Brewill window (W7) can be seen in the south aisle of the church.
Someone else who seems to have spent his early years in Lenton but later moved away is Henry Kirk, whose memorial window is to be found on the north aisle. Henry Kirk was a lace manufacturer with premises in St. Mary's Gate, who up until the time of his death in April 1911 lived at 'The Oaks' on Broadgate in Beeston. His heart, however, must have remained in Lenton as he was buried in Lenton churchyard and left £500 to the Church schools. The memorial window (W2) erected by his sister, Mrs. Anne Carver, shows representations of the Good Shepherd; the Good Samaritan; the story of the talents; and St. Lawrence bearing a grid iron the instrument of his torture.
The remaining two memorial windows are both the gift of Albert Ball senior. The first window (W5) he and his brother, Frederick, had erected in memory of their mother Lois Ball who died in April 1913, aged 87. The subjects in the four lights are the Annunciation; the birth of Christ; the boy Jesus in the temple; and the turning of water into wine at the wedding at Cana. The second window (W4) paid for by Sir Albert Ball (the knighthood having been gained in 1924) was in memory of his wife, Lady Harriett Mary Ball, who died in March 1931 aged 66 and this window is on the north aisle. Lady Ball, herself, lies buried in the family vault which is to be found at the foot of the tower.
THE FONT
The star attraction at Holy Trinity must undoubtedly be the font. Its story has been told many times before but will no doubt bear retelling yet again. Of Norman origin, this font would once have stood in Lenton Priory but, following its dissolution, parishioners must have removed it from the Priory and placed it in the new parish church based within St. Anthony's Chapel. There it would have stood undisturbed for the next two hundred and fifty years until William Stretton came along. The builder of 'Lenton Priory' (*) and an enthusiastic collector of antiquities, William Stretton managed to persuade Lenton's churchwardens to give him the font sometime in the early 1800s. In its place he provided a small wooden substitute. The story now moves on to the late 1830s/early 1840s when the Rev. George Browne arrived in Lenton. This reverend gentleman was being shown round the grounds of Lenton Priory when he happened to spot the old font ignominiously employed as a plant holder. Once he had been told what it was and how it had got there, the Vicar wrote to William Stretton's son (Stretton himself having died in 1828) and requested that the font be restored to the parish church, as Mr. Stretton should never have been allowed to take it away. The font was duly handed back but initially just stood outside the old parish church, where it was used as an umbrella stand. Once the new parish church was ready, the font, restored to its proper use, was placed near the chancel just in front of the pulpit. Later in 1894 it was moved to a position by the west door where it remained until 1904 when W.G. Player and his wife paid for a new marble base and the font took up its present location at the west end of the south aisle. Believed to have been carved in the mid twelfth century it is considered by Pevsner in his Buildings of England : Nottinghamshire (rev. ed. 1979) to be 'without doubt one of the most interesting in the country and one of only five rectangular narrative fonts'.
The north face has a simple foliated cross but the other sides have rich figurative carvings. The east face consists of eleven arcades set in two tiers, ten of them filled with cherubims hovering above seraphims, while the middle arcade on the lower tier is given over to a depiction of the baptism of Christ by John. The south side shows the Crucifixion with a Roman soldier piercing Christ's side with his spear as the soul of the penitent thief rises up towards heaven while that of the impenitent thief is consumed by a large dragon. The final side, the west face, has four panels. The top two show the Resurrection and to its right a combined scene of the Entombment and the Resurrection. Below these are panels showing the three Marys with the Holy Sepulchre to their right. Pevsner goes on to state that the carving (with traces of original colour still showing) is 'typical Cluniac' but that the style of execution has no parallel in England and he quotes one authority as suggesting it may have 'Spanish origins'.
Whatever its origins Holy Trinity is delighted to house such a treasure. But it was clearly a close run thing. Such exposure to the elements as the font had to endure while lodged in Stretton's garden won't have helped conserve its carved surfaces. What might have happened to them, had the Rev. George Browne not made his discovery and demanded the font's safe return, doesn't bear thinking about. We should all offer Mr. Browne a hearty vote of thanks.
(*) Now incorporated within the Nazareth House complex.

All three drawings by Maureen Voisey.
Those who wish to know more about the church are directed to The Parish and Priory of Lenton by Edwin D. Ginever (1930) and Holy Trinity and the Parish of Lenton by Leslie Berry (1982).


